【伸縮器系列】
【傳力接頭系列】
【防水套管系列】
【補償器系列】
【橡膠接頭系列】

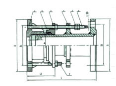
雙法蘭限位伸縮接頭型號VSSJA-2或B2F型,管道兩邊法蘭的連接方式,安裝在管道上可以和閥門連接,既補償了管道的伸縮量又對閥門的維修提供了方便。 VSSJA-2型雙法蘭限位伸縮接頭是由松套伸縮接頭和一個法蘭限位短管組合而成。雙法蘭限位伸縮接頭能防止管道因超量位移導致補償接頭的泄漏和損壞,主要用于在允許位移范圍內吸收軸向位移和承受軸向壓力推力的管道松套連接。
雙法蘭限位伸縮接頭應用范圍
VSSJA-2型雙法蘭限位伸縮接頭適用于輸送海水、淡水、冷熱水、飲用水、生活污水、原油、燃油、潤滑油、成品油、空氣、煤氣、溫度不高于250度的蒸汽和顆粒粉狀等介質。
雙法蘭限位伸縮接頭功能介紹
雙法蘭限位伸縮接頭型號VSSJA-2或B2F型,管道兩邊法蘭的連接方式,安裝在管道上可以和閥門連接,既補償了管道的伸縮量又對閥門的維修提供了方便。 VSSJA-2型雙法蘭限位伸縮接頭是由松套伸縮接頭和一個法蘭限位短管組合而成。雙法蘭限位伸縮接頭能防止管道因超量位移導致補償接頭的泄漏和損壞,主要用于在允許位移范圍內吸收軸向位移和承受軸向壓力推力的管道松套連接。